Logo
logout
Menu ❄️ RocketSeat❄️ Arte | Tipográfia | Estratégia | vendas | Design❄️ Nicho Adulto | AI | Motion | Mentorias | Facebook❄️ Coleção: Edição de Vídeos - Mateus Ferreira❄️ Coleção: Thiago Finch❄️ DROPSHIPPING | E-COMMERCE | Mercado Pago❄️ Motion | Blender | 3D | Social Media | Carrossel❄️ EBAC | Photoshop | Publicidade | Design | Adobe❄️ Flask | Bootcamp | C# | Python | NodeJS | React❄️ CURSOS | ALURA❄️ IDIOMAS | INGLÊS | Alemã | Tradução❄️ TRADER | LÓGICA DO PREÇO❄️ DROPSHIPPING E E-COMMERCE❄️ AI❄️ ZDM❄️ ALURA @TODOS❄️ PREMUIN
villa / ARQUITETURA E ENGENHARIA / BIM Prático ArchiCad para Arquitetura - Felipe Porfiro / Modulo 9 - Bônus - Semanas de Conteúdo / Imersão ArchiCad / Arquivos / 01_Exercício Apartamento
Conteúdos
Biblioteca ARCHICAD 23
Biblioteca ARCHICAD 24
Outros
  • TPL
    HUB_Imersão Archicad_Template 23.tpl
    cloud_download
  • TPL
    HUB_Imersão Archicad_Template 24.tpl
    cloud_download
  • JPG
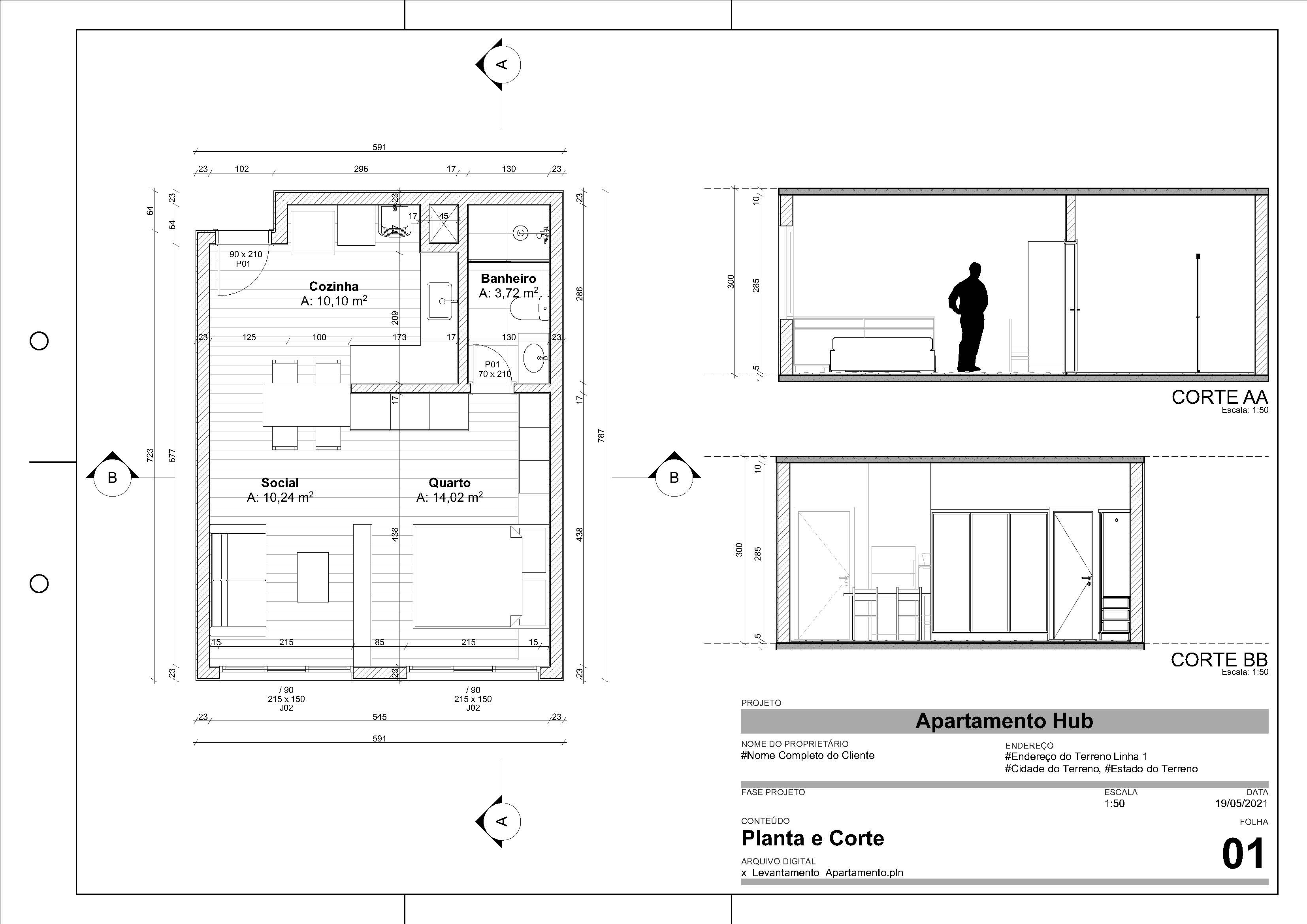
    x_Levantamento_Apartamento_01.jpg
    cloud_download
  • PDF
    x_Levantamento_Apartamento_01.pdf
    cloud_download
Status do Download
×
Arquivo:
hourglass_empty Iniciando download...
0 MB de 0 MB
0%
hourglass_empty 0%

Logo Canal Telegram check_circle | Suporte admin_panel_settings

©2025 SNUX TCG